加工中心(数铣)高级技师实操试题39
数控铣床高级工(实)加工图、模拟试题

准备 内 容
场地安全
场地及通道必须符合国家对教学实训场所的规定
场地及通道内必须配备符合国家法令的消防设施
所有的电气设施必须符合国家标准
必须保证考核使用设备的安全装置完好
人员安全
监考人员发现考生有违反安全生产规定的行为要立即制止,对于不服从指挥者,监考人员有权中止其考试,并认真做好记录。
考生及监考人员必须穿戴好安全防护服装
考场必须在开始考试前对考生进行必要的安全教育
考场应准备一定的急救用品
序号
名称
型号
数量
要求
1
立铣刀
Φ8
1
2
立铣刀
Φ20
1
3
键槽铣刀
φ6
1
4
麻花钻
φ9.8
1
5
麻花钻
φ6.8
1
6
丝锥
M8
1
7
铰刀
Φ10
1
8
铰杠
1
9
常用工具和铜皮
自选
自定
10
百分表
读数0.01
1
11
游标卡尺
0.02/0~200
1
12
游标深度尺
2
2
量具的正确使用
2
3
刃具的合理使用
2
4
设备正确操作和维护保养
4
合计
10
(3)工序制定及编程评分表
序号
项目
考核内容
配分
实际情况
得分
1
工序制定
工序制定合理,选择刀具正确
10
2
指令应用
指令应用合理、得当、正确
15
3
程序格式
数控铣工加工中心操作工[高级]操作试题[10题]
![数控铣工加工中心操作工[高级]操作试题[10题]](https://uimg.taocdn.com/0e40003590c69ec3d4bb752b.webp)
NO.1【小连杆凸模】
NO.1数控铣工/加工中心操作工高级工操作考件评分表
NO.2【椭圆台阶孔】
NO.2数控铣工/加工中心操作工高级工操作考件评分表
NO.3【摇臂椭圆台】
NO.3数控铣工/加工中心操作工高级工操作考件评分表
NO.4【半球六方体】
NO.4数控铣工/加工中心操作工高级工操作考件评分表
NO.5【转盘底座】
NO.5数控铣工/加工中心操作工高级工操作考件评分表
NO.6【凹球四棱锥】
NO.6数控铣工/加工中心操作工高级工操作考件评分表
NO.7【球面四方定位座】
NO.7数控铣工/加工中心操作工高级工操作考件评分表
NO.8【薄壁梅花】
NO.8数控铣工/加工中心操作工高级工操作考件评分表
NO.9【双重斜槽组合】
NO.9数控铣工/加工中心操作工高级工操作考件评分表
NO.10【成型模】
NO.10数控铣工/加工中心操作工高级工操作考件评分表。
加工中心高级工实操试题

姓名班级考号成绩
一、某模板零件图尺寸如下图所示,已知毛坯尺寸为120mm×100mm×30mm,材料为45钢调质,底面已经完成精加工,请完成零件的加工。(时间180分钟)
二、要求:
1、以小批量生产条件编程;合理安排加工工艺路线,选用合适的夹具并建立加工坐标系;
2、编写完整的加工程序单;
30
结构错一处扣5分
16
安全文明生产
着装是否规范
10
现场考评
17
刀具工具量具的放置是否规范
18
工件装夹刀具安装是否规范
19
量具的正确使用
20
加工完成后对设备的保养及周边环境卫生的保持和清洁
21
机床的规范操作
开机的检查和开机顺序是否正确
10
现场考评
22
回机床参考点
23
正确执行对刀操作,建立工件坐标系
24
3
降一级扣1.5分
6
80±0。03
I T
6
超差不得分
7
11±0。016
I T
3
超差不得分
8
Ra1。6
3
降一级扣1.5分
9
5
I T
6
超差不得分
10
7
I T
8
超差不得分
11
30
I T
8
超差不得分
12
100
I T
3
超差不得分
13
R20
I T
4
超差不得分
14
形位
公差
对称度
5
超差不得分
15
外形
加工的工件外形是否正确
高级铣工实训试题5套

工量刃具准备单零件图号: MG-01工件编号:姓名:单位:检测评分记录表姓名单位工种数控铣/加工中心图号MG-01 序号考核项目考核内容评分标准配分检测结果得分备注1 主要尺寸043.090±IT 超差0.01 扣1分8 2处aR降一级扣1 分 2 周边065.0025.050++φIT 超差0.01 扣1分 6aR降一级扣1 分 2 周边035.022+IT 超差0.01 扣1分10 2处aR降一级扣1 分 2 周边035.015±IT 超差0.01 扣1分 5IT 超差0.01 扣1分 52 次要尺寸18RIT 超差0.01 扣1分8 4处aR降一级扣1 分 2 周边42R-IT 超差0.01 扣1分 4 4处aR降一级扣1 分 2 周边15IT 超差0.01 扣1分 4 4处92IT 超差0.01 扣1分 4 4处5IT 超差0.01 扣1分 63 程序编制建立工作坐标系出错不得分 3 程序代码正确出错不得分 3 刀具轨迹正确出错不得分 3 程序完整性不完整不得分 34 机床操作机床操作规范不规范不得分 3 工件装夹正确出错不得分 3 对刀正确出错不得分 3 刀具装夹正确出错不得分 35 工、量具的正确使用工、量具摆放整齐不规范不得分 3工、量使用正确不规范不得分 36 加工时间超过定额时间5min 扣1 分;超过10min 扣5 分,以后每超过5min 加扣5 分,超过30min则停止考试。
7 文明生产按有关规定每违反一项从总分中扣 3 分,发生重大事故取消考试。
扣分不超过10 分。
总分考评员日期数控铣工(高级)操作技能实训试题(二)工量刃具准备单零件图号: MG-02数控铣工(高级)操作技能实训试题(二)工件编号:姓名:单位:数控铣工(高级)操作技能实训试题(二)检测评分记录表姓名单位工种数控铣/加工中心图号MG-02 序号考核项目考核内容评分标准配分检测结果得分备注1 主要尺寸038.0478.74±IT 超差0.01 扣1分9 3处aR降一级扣1 分 3 周边06.048.64-IT 超差0.01 扣1分9 3处aR降一级扣1 分 3 周边074.047.54+IT 超差0.01 扣1分9 3处aR降一级扣1 分 3 周边03.015±IT 超差0.01 扣1分 5IT 超差0.01 扣1分 52 次要尺寸6φIT 超差0.01 扣1分 6 6处aR降一级扣1 分 65(深度)IT 超差0.01 扣1分 686φIT 超差0.01 扣1分 63 程序编制建立工作坐标系出错不得分 3 程序代码正确出错不得分 3 刀具轨迹正确出错不得分 3 程序完整性不完整不得分 34 机床操作机床操作规范不规范不得分 3 工件装夹正确出错不得分 3 对刀正确出错不得分 3 刀具装夹正确出错不得分 35 工、量具的正确使用工、量具摆放整齐不规范不得分 3工、量使用正确不规范不得分 36 加工时间超过定额时间5min 扣1 分;超过10min 扣5 分,以后每超过5min 加扣5 分,超过30min则停止考试。
2021年职业资格数控铣工高级技师试题(含答案).docx

2021年职业资格数控铳工高级技师试题(含答案)1、(判断题)数控回转工作台可以作为数控铢床的一个旋转坐标轴,能与其它坐标轴联动。
答案:正确2、(判断题)数控铳床的重复定位精度应该低于定位精度答案:错误3、(判断题)数控机床出现故障时,维修人员应首先检查数控系统。
答案:错误4、(判断题)职业道德的实质内容是建立全新的社会主义劳动关系答案:正确5、(判断题)标准直齿圆柱齿轮分度圆压力角a =()。
答案:A6、(判断题)车间日常工艺管理中首要任务是组织职工学习工艺文件,进行遵守工艺纪律的宣传教育,并例行工艺纪律的检查。
答案:正确7、(判断题)G02X_Y_R_不能用于整圆的加工。
答案:正确8、(判断题)高速钢与硬质合金相比,具有硬度较高,红硬性和耐磨性较好等优点。
9、(判断题)加工中刀具(工作台)反复进行同一切削动作时,通常采用的编程方法是()。
答案:A10、(判断题)期刊一般是指名称固定、开本一致的定期连续出版物。
期刊论文内容新颖,报道速度快,信息含量大,是传递科技情报、交流学术思想最基本的文献形式。
答案:错误11、(判断题)机床运行前应先返回参考点检查参考点位置是否正确,再空运行预热几分钟。
答案:正确12、(判断题)300 X 300mm零件表面,加工工艺为粗铢一精铢一磨削,合理的磨削余量为()。
答案:A13、(判断题)一个从业人员既是()的对象,也是为别人服务的主体。
答案:A14、(判断题)刀具前角越大,切屑越不容易流出,切削力越大,但是刀具的强度越高。
答案:错误15、(判断题)在梯形图中,线圈必须放在所有触点的右边答案:正确16、(判断题)铢削平面零件的外表面轮廓时,常采用沿零件轮廓曲线的延长线切向切入和切出零件表面,以便于保证零件轮廓光滑答案:正确17、(判断题)在规定的条件下数控机床维持无故障工作的能力称为数控机床的()。
答案:A18、(判断题)钢件淬火常用的淬火介质有水和水溶液盐类,以及油、空气等答案:正确19、(判断题)遵纪守法是指从业人员要遵守职业纪律和职业活动的法律、法规,保守国家机密,不泄露企业情报信息。
加工中心-数铣高级技师实操考试

实用文档
加工中心(数铣)高级技师考证实操图四
文案大全
实用文档 文案大全
实用文档
加工中心(数铣)高级技师考证实操图五
文案大全
实用文档 文案大全
实用文档
加工中心(数铣)高级技师考证实操图六
文案大全
实用文档 文案大全
实用文档 文案大全
实用文档
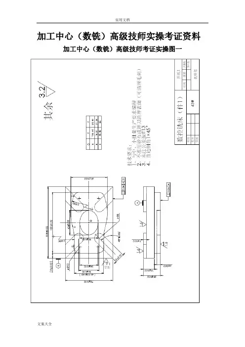
加工中心(数铣)高级技师实操考证资料
加工中心(数铣)高级技师考证实操图一
文案大全
实用文档 文案大全
实用文档 文案大全
实用文档 文案大全
实用文档
加工中心(数铣)高级技师考证实操图二
文案大全
实用文档 文案大全
实用文档 文案大全
பைடு நூலகம்
实用文档
加工中心(数铣)高级技师考证实操图三
文案大全
实用文档 文案大全
数控铣工数控加工中心技师题库和真题
山东省“金蓝领“培训
内部资料禁止外传
JIER-JX
数控铣床/加工中心复习题
(数控铣床/加工中心 技师)
学员注意: 理论和仿真计算机考试。 理论:考试时间 90 分钟,题库随机抽题 100 个,80 选择和 20 判断。 仿真:2 小时 实操:2-4 小时 论文:准备论文,教师指导修改后打印 4 份 有问题发邮件:liqirui6699@ 电话:0531-81617733
第 3 页 共 82 页
济南二机床集团有限公司职业技能鉴定所
山东省“金蓝领“培训
内部资料禁止外传
4.职业道德是社会道德在职业行为和职业关系中的具体表现。 ( ) 5.企业的发展与企业文化无关。 ( ) 6.职业道德起到增强企业竞争力的作用。 ( ) 7.培养良好的职业道德修养必须通过强制手段执行。 ( ) 8.职业道德修养要从培养自己良好的行为习惯着手。 ( ) 参考答案 一、单项选择题 1.B 2.C 3.A 4.B 5.B 6.D 7.A 8.C 9.C 10.B 11.C 12.C 二、判断题 1.√ 2.√ 3.√4.√ 5.× 6.√ 7.× 8.√
单位:________ 姓名:________
201业技能鉴定所
山东省“金蓝领“培训
内部资料禁止外传
数控机床操作与零件加工基础知识目录 第一章 职业道德与职业守则 ................................................................................... 3 第一节 职业道德 ....................................................................................... 3 第二节 职业守则 ....................................................................................... 4 第二章 基础理论知识 ............................................................................................... 5 第一节 专业英语 ....................................................................................... 5 第二节 机械原理和机械零件 ................................................................... 6 第三节 液压与润滑 ................................................................................... 7 第四节 电气控制基础 ............................................................................... 8 第五节 数控机床与伺服控制机构 ......................................................... 10 第三章 机械加工基础知识 ..................................................................................... 11 第一节 金属材料与热处理 ..................................................................... 11 第二节 刀具影响因素 ............................................................................. 14 第三节 典型表面加工和特殊加工 ......................................................... 16 第四章 加工准备 ..................................................................................................... 18 第一节 读图与识图 ................................................................................. 18 第二节 制定加工工艺 ............................................................................. 20 第三节 零件定位与装夹 ....................................................................... 23 第四节 刀具准备 .................................................................................... 30 第五章 数控编程基础 ........................................................................................... 32 第一节 手工编程 .................................................................................... 32 第二节 自动编程 ..................................................................................... 37 第三节 宏程序编程基础 ......................................................................... 39 第六章 数控机床维护与精度检测 ......................................................................... 49 第一节 数控机床日常维护 ..................................................................... 49 第二节 数控机床故障诊断 ..................................................................... 51 第三节 机床精度检测 ............................................................................. 55 第七章 数控铣床/加工中心的操作 ........................................................................ 57 第九章 数控零件的加工 ......................................................................................... 59 第一节 平面零件的加工 ......................................................................... 59 第二节 轮廓零件的加工 ......................................................................... 61 第三节 曲面零件的加工 ......................................................................... 63 第四节 孔系零件的加工 ......................................................................... 65 第五节 槽类零件的加工 ......................................................................... 69 第六节 配合类零件的加工 ..................................................................... 71 第七节 零件精度检验 ............................................................................. 73
加工中心(数铣)技师实操考试图
加工中心(数铣)技师实操考试图第一篇:加工中心(数铣)技师实操考试图加工中心(数铣)技师培训实操图加工中心(数铣)技师考证实操图加工中心(数铣)高级技师考证实操图一广东省国防科技高级技工学校加工中心(数铣)技师培训实操图广东省国防科技高级技工学校加工中心(数铣)技师培训实操图广东省国防科技高级技工学校加工中心(数铣)技师培训实操图加工中心(数铣)技师考证实操图二广东省国防科技高级技工学校加工中心(数铣)技师培训实操图广东省国防科技高级技工学校加工中心(数铣)技师培训实操图加工中心(数铣)高级技师考证实操图三广东省国防科技高级技工学校加工中心(数铣)技师培训实操图广东省国防科技高级技工学校加工中心(数铣)技师培训实操图广东省国防科技高级技工学校加工中心(数铣)技师培训实操图广东省国防科技高级技工学校加工中心(数铣)技师培训实操图广东省国防科技高级技工学校加工中心(数铣)技师培训实操图加工中心(数铣)高级技师考证实操图四广东省国防科技高级技工学校第二篇:加工中心-数铣高级技师实操考试加工中心(数铣)高级技师培训实操图加工中心(数铣)高级技师实操考证资料加工中心(数铣)高级技师考证实操图一广东省国防科技高级技工学校加工中心(数铣)高级技师培训实操图广东省国防科技高级技工学校加工中心(数铣)高级技师培训实操图广东省国防科技高级技工学校加工中心(数铣)高级技师培训实操图广东省国防科技高级技工学校加工中心(数铣)高级技师培训实操图加工中心(数铣)高级技师考证实操图二广东省国防科技高级技工学校加工中心(数铣)高级技师培训实操图广东省国防科技高级技工学校加工中心(数铣)高级技师培训实操图广东省国防科技高级技工学校加工中心(数铣)高级技师培训实操图加工中心(数铣)高级技师考证实操图三广东省国防科技高级技工学校加工中心(数铣)高级技师培训实操图广东省国防科技高级技工学校加工中心(数铣)高级技师培训实操图加工中心(数铣)高级技师考证实操图四广东省国防科技高级技工学校加工中心(数铣)高级技师培训实操图广东省国防科技高级技工学校加工中心(数铣)高级技师培训实操图加工中心(数铣)高级技师考证实操图五广东省国防科技高级技工学校加工中心(数铣)高级技师培训实操图广东省国防科技高级技工学校加工中心(数铣)高级技师培训实操图加工中心(数铣)高级技师考证实操图六广东省国防科技高级技工学校加工中心(数铣)高级技师培训实操图广东省国防科技高级技工学校加工中心(数铣)高级技师培训实操图广东省国防科技高级技工学校第三篇:加工中心-数铣高级技师实操考试资料加工中心(数铣)高级技师培训实操图加工中心(数铣)高级技师实操考证资料加工中心(数铣)高级技师考证实操图一广东省国防科技高级技工学校加工中心(数铣)高级技师培训实操图广东省国防科技高级技工学校加工中心(数铣)高级技师培训实操图广东省国防科技高级技工学校加工中心(数铣)高级技师培训实操图广东省国防科技高级技工学校加工中心(数铣)高级技师培训实操图加工中心(数铣)高级技师考证实操图二广东省国防科技高级技工学校加工中心(数铣)高级技师培训实操图广东省国防科技高级技工学校加工中心(数铣)高级技师培训实操图广东省国防科技高级技工学校加工中心(数铣)高级技师培训实操图加工中心(数铣)高级技师考证实操图三广东省国防科技高级技工学校加工中心(数铣)高级技师培训实操图广东省国防科技高级技工学校加工中心(数铣)高级技师培训实操图加工中心(数铣)高级技师考证实操图四广东省国防科技高级技工学校加工中心(数铣)高级技师培训实操图广东省国防科技高级技工学校加工中心(数铣)高级技师培训实操图广东省国防科技高级技工学校第四篇:数控加工实训报告(车铣)目录数控铣床实训 (2)实训目的和意义....................................................................2 数控铣床简介.......................................................................2 数控铣床主要功能.................................................................3 数控铣床加工范围.................................................................4 数控铣床的指令....................................................................5 数控铣床的对刀....................................................................6 数控车床实训.............................................................................7 实训目的.............................................................................7 实训内容.............................................................................8 数控车床的简介....................................................................8 数控车床基本组成.................................................................9 数控车床编程技巧.................................................................9 数控车床编程常用指令...........................................................12 数控车床的对刀....................................................................14 实习总结.. (16)一、数控铣床实训1.1实训目的1.了解数控铣床的功能和分类,数控铣床的结构及主要性能指标。
数控铣加工中心(职教组)实操试题
4-φ
4
−0.02 −0.05
5
2-20±0.1
四 其它
8 +0 − 0.1
IT
一处每超差扣 0.1 分
IT
一处每超差扣 0.2 分
4 要素完成得配分
塞规检查
IT
每处不合格扣 0.5 分
IT
一处每超差 0.01 扣 0.2 分
IT
每超差 0.01 扣 0.2 分
IT
一处每超差 0.01 扣 0.2 分
φ
8
0
A
7
0
-0 -0
. .
02 06
740 -0来自.14-R
2
+0.2 0
技术条件: 1、未注尺寸±0.1 2、未注表面粗糙度Ra1.6 3、未注圆角R3±0.5 4、锐边倒角0.2×45°
材料
2A12T4
上盖
数量
1
数控铣床、加工中心工种
图号
ZJ-JGZX-01b
职工、教师组
比例
1:1
第四届全国数控技能大赛(河 南赛区)选拔决赛
R
3+0.3 − 0.3
IT
一处每超差扣 0.3 分
4 − R3+−00..33
IT
一处每超差扣 0.3 分
三
4-φ
4
−0.02 −0.05
轴方向
φ
76++00..103
×
70 ++00..103
×
2
+0.1 01
轮廓
70
+0.1 + 0.03
IT
1
φ 76++00..103
数控铣工加工中心操作工(高级)试题库【150判断+150选择】
数控铣工 / 加工中心操作工【高级】试题库知识要求试题1.所有数控机床加工程序的结构均由引导程序、主程序及子程序组成。
( )2.数控装置接到执行的指令信号后,即可直接驱动伺服电动机进行工作。
( )3.点位控制数控机床除了控制点到点的准确位置外,对其点到点之间的运动轨迹也有一定要求。
( )4.数控机床的坐标系规定与普通机床相同,均是由左手笛卡儿坐标系确定。
( )5.G00、G02、 G03、G04均为模态指令。
( )6.ISO 标准规定了 G代码和 M代码从 00-99 共 l00 种。
( )7.辅助功能指用以指定数控机床中辅助装置的开关动作。
( )8.一个尺寸链一定只能有一个封闭环。
( )9.数控装置向伺服系统发出的信号为模拟信号。
( )10.第一台数控机床是二轴联动的数控车床。
( )11.通俗地讲,对刀就是找机床的坐标系零位。
( )12.经济型数控机床一般不需要检测反馈装置。
( )13.数控机床适合加工多品种、小批量的生产。
( )14.数控系统靠模拟量来控制机床各部件工作。
( )15.不完全定位与欠定位含义相同。
( )16.过定位与欠定位不能同时出现。
( )17.精加工铸铁时,可选用金刚石刀具。
( )18.被切削材料强度越高,则切削力越大,因而金属切削变形越大。
( )19.刀具磨损分为初期磨损、正常磨损和急剧磨损三种形式。
( )20.YG 类硬质合金中含钻量较高的牌号耐磨性好,硬度较高。
( )21. 铣削用量选择的次序是:铣削速度、每齿进给量、铣削宽度、最后是铣削深度。
( )22. 所谓节点计算就是指计算逼近直线或圆弧段与非圆曲线的交点或切点。
( )23.粗加工时,限制进给量的是切削力,精加工时,限制进给量的是表面粗糙度。
( ) 24.用键槽铣刀和立铣刀加工封闭沟槽时,均需事先钻好落刀孔。
( )25.高速钢与硬质合金相比,具有硬度较高,红硬性和耐磨性较好等优点。
( )26.指状铣刀是成形铣刀的一种。